+30 698 5036 698 info@eyka.world

The Ideal Villa

YOUR family house or YOUR investment property

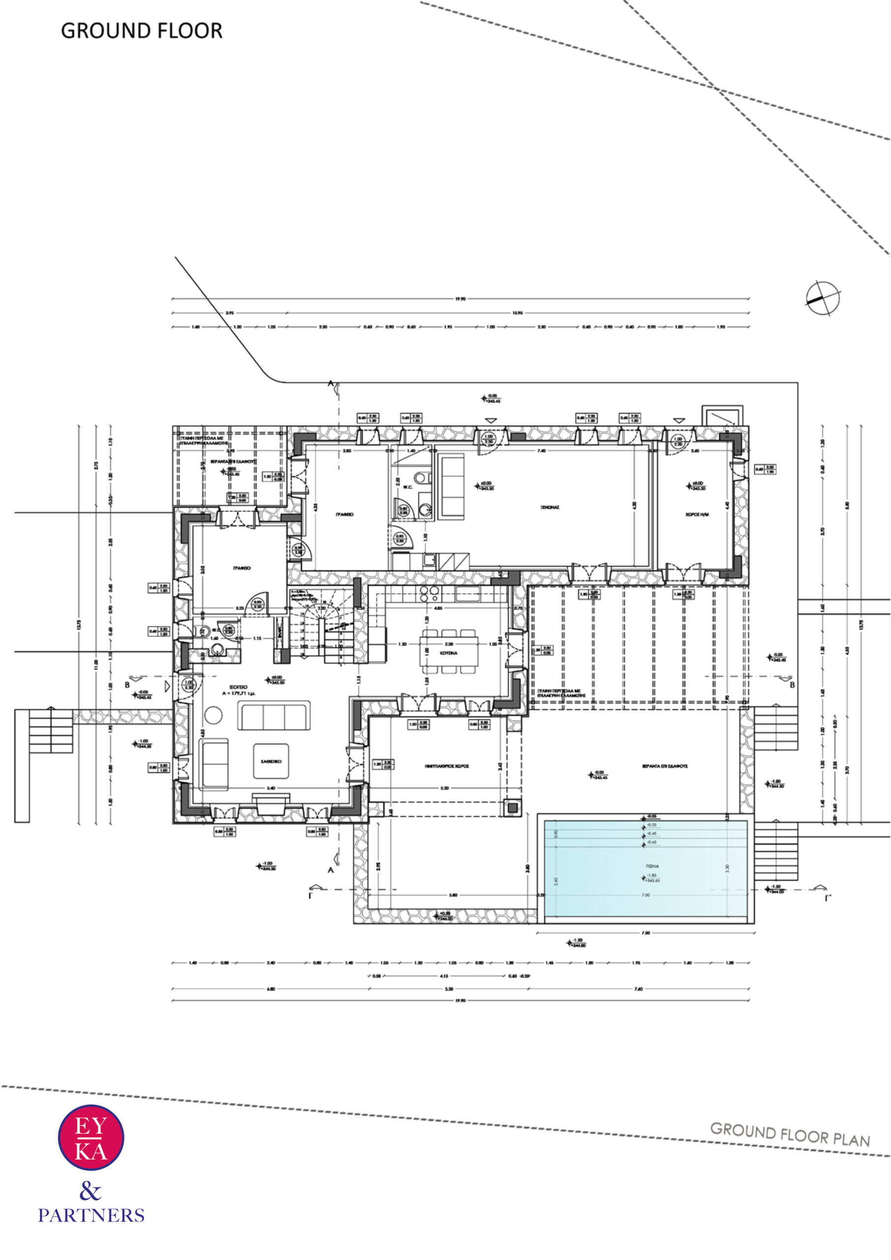
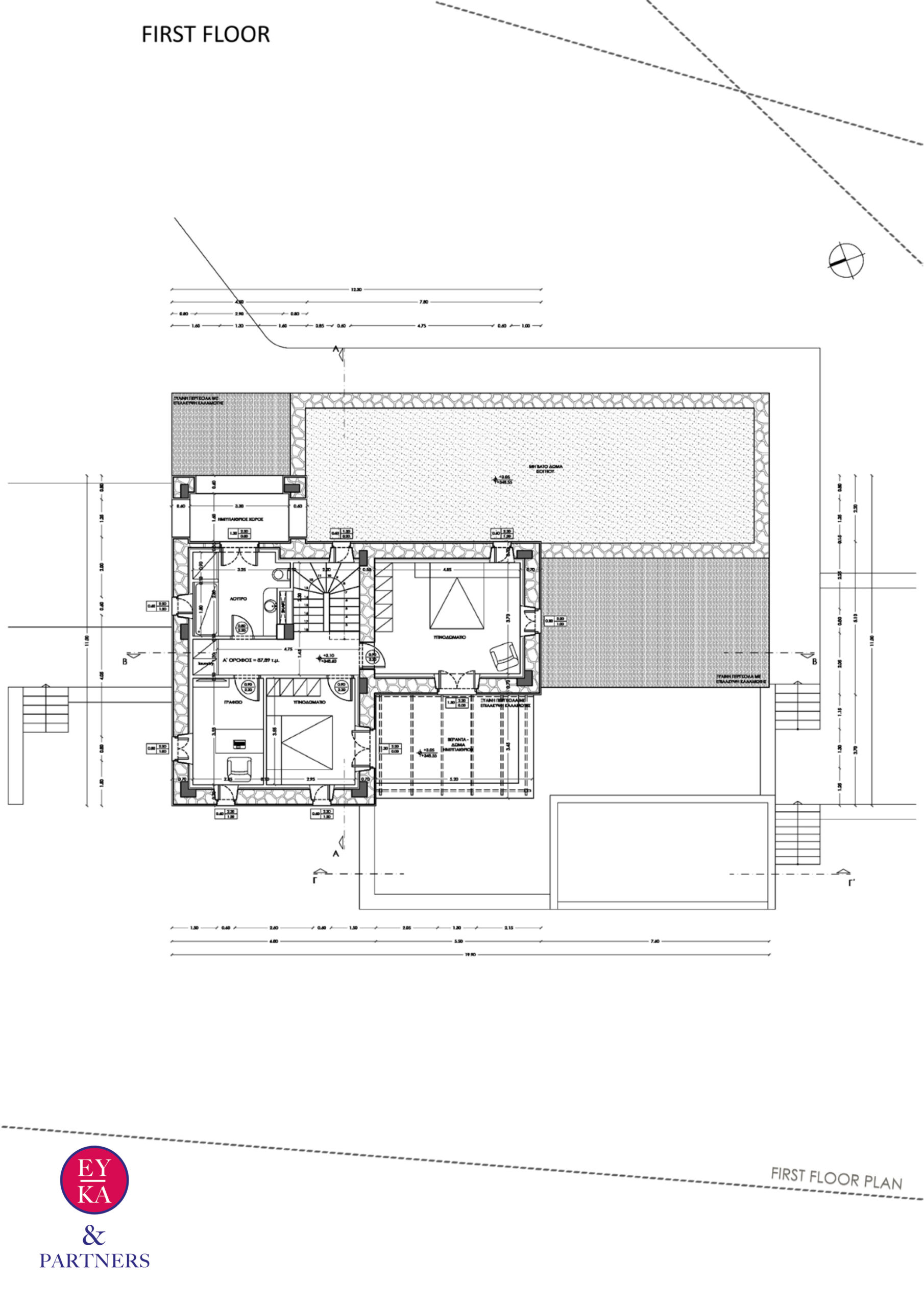
While designing this dream home, the main focus on the owners’ minds was a house big enough to give each other space for respective professional activities. It was equally important to have options for different activities & purposes: for instance yoga/fitness area that could be turned into a fully equipped guesthouse with its own entrance. It was a deliberate choice to have a full separate bathroom upstairs instead of an ensuite to have total freedom for the use of the bedrooms and office space.

The house is to become a all-year-round base, with efficient central heating, as well as a basement for storage and utility purposes, important aspects that were all considered in the planning.

As for the choice of Pitsinades the owners liked the idea of being « central » within walking distance to the supermarket and the kafeneio, close to Potamos and its all year round activities. The airport within a 10 min drive, the hospital nearby and last but not least a choice of various beaches (Lykodimou, Paleiopoli, Pelageia and our favorite Diakofti) and of course the amazing sunset views from the plot.

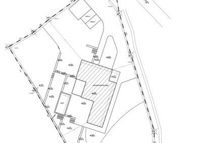
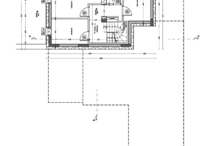
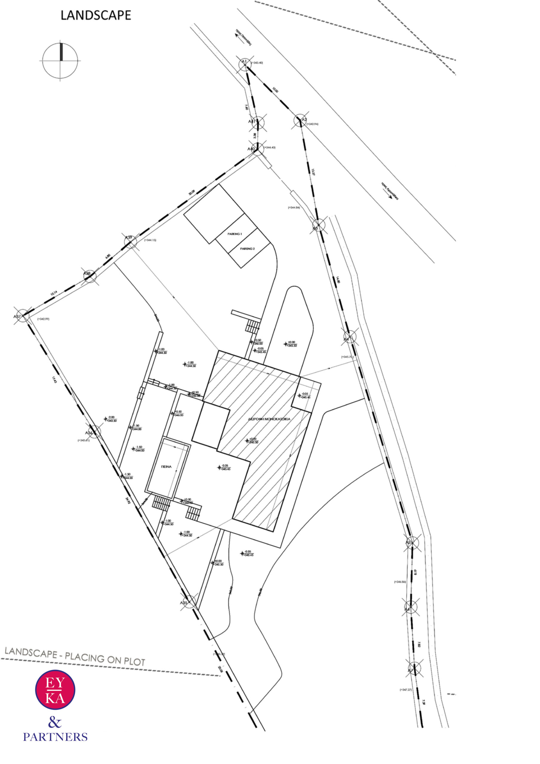
Download here the floor plans (PDF) for the approved building plot.